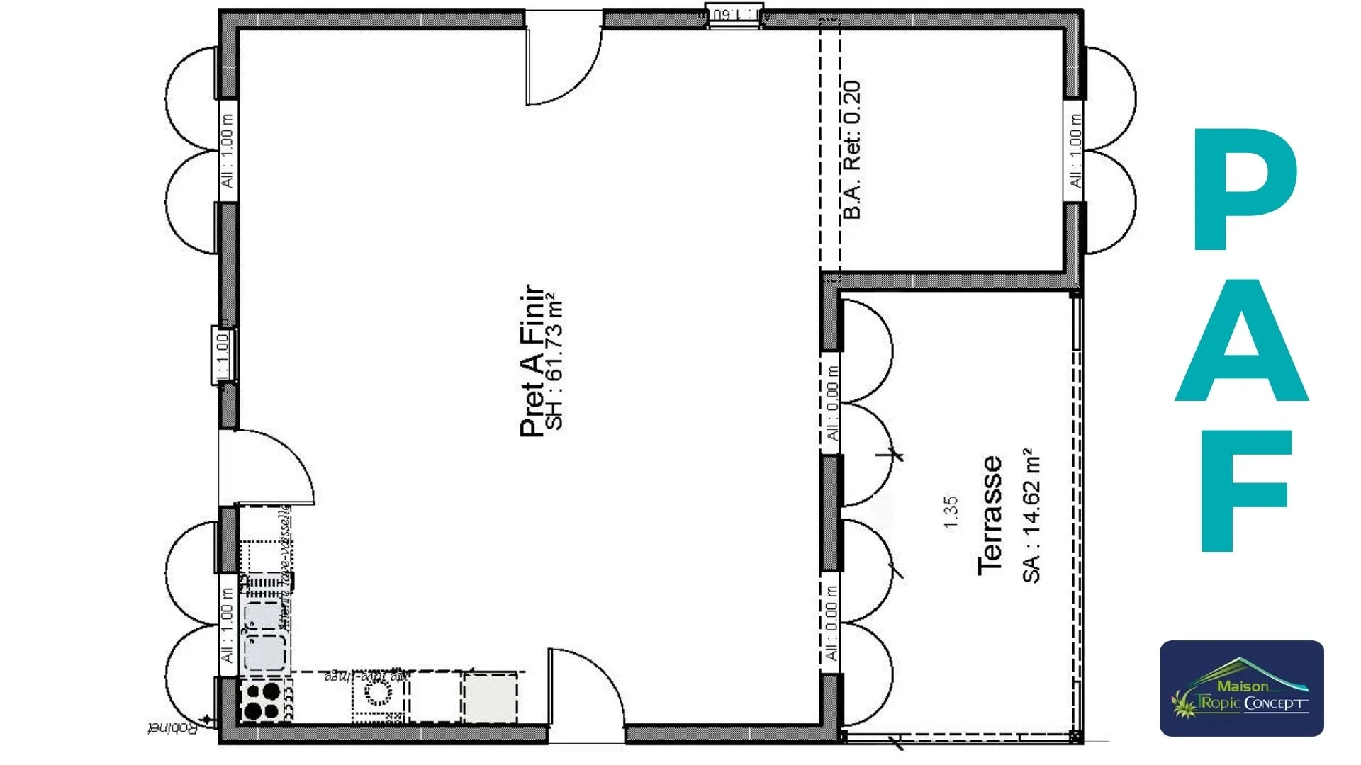
PAF (Prêt à Finir) – Maison hors d'eau hors d'air
À partir de 107 500 € TTC
Surface habitable : 61,73 m²
Construisez à votre rythme ! Nous réalisons les travaux de gros œuvre pour vous laisser le soin des finitions selon vos goûts et votre budget.
Commencez petit, voyez grand. ÉVOHOUSE s'adapte à vos besoins, aujourd'hui comme demain.
GLG Maison Tropic Concept vous présente ÉvoHouse. Plus qu'une simple construction, c'est une véritable révolution de l'habitat. Une maison qui s'adapte à chaque étape de votre vie, de votre budget et de vos projets.
Avec ÉVOHOUSE, commencez petit et voyez grand. Que vous soyez une jeune famille en pleine expansion ou un couple en quête de confort, votre maison suit vos rêves. Une surface qui s'agrandit, des pièces qui se multiplient, une terrasse qui s'étend...
ÉVOHOUSE, votre maison, à votre rythme, sans compromis.
À partir de 107 500 € TTC
Surface habitable : 61,73 m²
Construisez à votre rythme ! Nous réalisons les travaux de gros œuvre pour vous laisser le soin des finitions selon vos goûts et votre budget.
À partir de 152 626 € TTC
Surface habitable : 59,90 m²
Ajoutez des cloisons et transformer votre une pièce unique en quatre pièces fonctionnelles adaptées à la vie de famille.
À partir de 249 471 € TTC
Surface habitable : 91,72 m²
Ajoutez un studio indépendant, idéal pour un projet de location ou accueillir la famille.
Nos experts GLG vous accompagnent à chaque étape de votre projet ÉvoHouse. Obtenez dès maintenant votre devis personnalisé et transformez vos rêves en réalité.
Depuis plus de 35 ans, GLG Maison Tropic Concept est votre expert en construction de maisons en Guadeloupe. En 2025, nous vous présentons notre modèle ÉVOHOUSE, une maison qui s'adapte à vos besoins.
En tant que constructeur CCMI (Contrat de Construction de Maison Individuelle), nous vous garantissons des prix fixes, des délais respectés et des garanties solides (décennale, responsabilité civile).
Avec GLG, bénéficiez d'un accompagnement personnalisé et d'un seul interlocuteur pour réaliser votre projet de vie.
Maison familiale avec jardin tropical et piscine
Design moderne et fonctionnel, version améliorée
Architecture adaptée au climat tropical
Conception unique selon les besoins du client
Vidéo de présentation du concept ÉvoHouse par GLG Maison Tropic, montrant les avantages des maisons évolutives en Guadeloupe.
"Nous tenons à remercier toute l'équipe de GLG. Merci pour votre accueil chaleureux, pour votre professionnalisme et pour votre accompagnement exemplaire tout au long de notre construction. Notre expérience chez vous a été plus que agréable et facile et nous ne manquerons pas de conseiller GLG à tous nos proches pour leurs futurs projets."
"Grâce à la formule évolutive ÉvoHouse, nous avons pu commencer avec un budget maîtrisé et agrandir plus tard. Une vraie solution intelligente qui s'adapte à notre vie !"
Une maison évolutive ÉvoHouse est une solution de logement intelligente conçue pour s'adapter à votre mode de vie en Guadeloupe. Elle vous permet de commencer avec une surface habitable adaptée à vos besoins actuels, puis de l'agrandir progressivement, que ce soit pour accueillir une nouvelle chambre, un bureau, une suite parentale, ou même un studio indépendant.
Contrairement aux maisons classiques, une maison évolutive est pensée dès sa conception pour faciliter les extensions futures, avec une structure modulaire et des aménagements prévus pour connecter facilement de nouvelles pièces. Vous bénéficiez d'une flexibilité totale, sans compromettre la qualité de la construction.
Chez GLG Maison Tropic Concept, nous vous proposons des maisons évolutives adaptées au climat tropical de la Guadeloupe, construites avec des matériaux de qualité et bénéficiant de toutes les garanties d'un constructeur CCMI (Contrat de Construction de Maison Individuelle). Que vous souhaitiez agrandir votre maison pour votre famille, ajouter un espace de télétravail ou créer un revenu locatif avec un studio indépendant, nos solutions évolutives vous offrent une liberté totale.
Le CCMI (Contrat de Construction de Maison Individuelle) est un contrat légal qui encadre la construction de maisons individuelles en France et en Guadeloupe, offrant une sécurité renforcée pour les futurs propriétaires. En choisissant GLG Maison Tropic Concept, constructeur CCMI en Guadeloupe, vous bénéficiez de multiples garanties :
GLG Maison Tropic Concept, en tant que constructeur CCMI, vous garantit une construction sereine, sécurisée et parfaitement encadrée, adaptée à vos besoins et à votre budget. Que vous rêviez d'une maison évolutive ou d'une villa sur mesure, nous transformons vos projets en réalité.